"Sustainable architecture is designing and creating buildings that positively impact the environment. This puts the planet first and improves the quality of present-day life. Designers create a vision of the beauty within this planet, while providing a place of comfort and a balance between people’s needs and the environment."

Shamokin, PA Olivia Kleman
Olivia's Website

Restaurant in Puerto Madero, Buenos Aires, Argentina

Rendering of the front entrance to the Riverside Diner.

Rendering of the front entrance to the Riverside Diner.

View Full Size

Site plan of the restaurant (white) and surrounding context.

Site plan of the restaurant (white) and surrounding context.

View Full Size

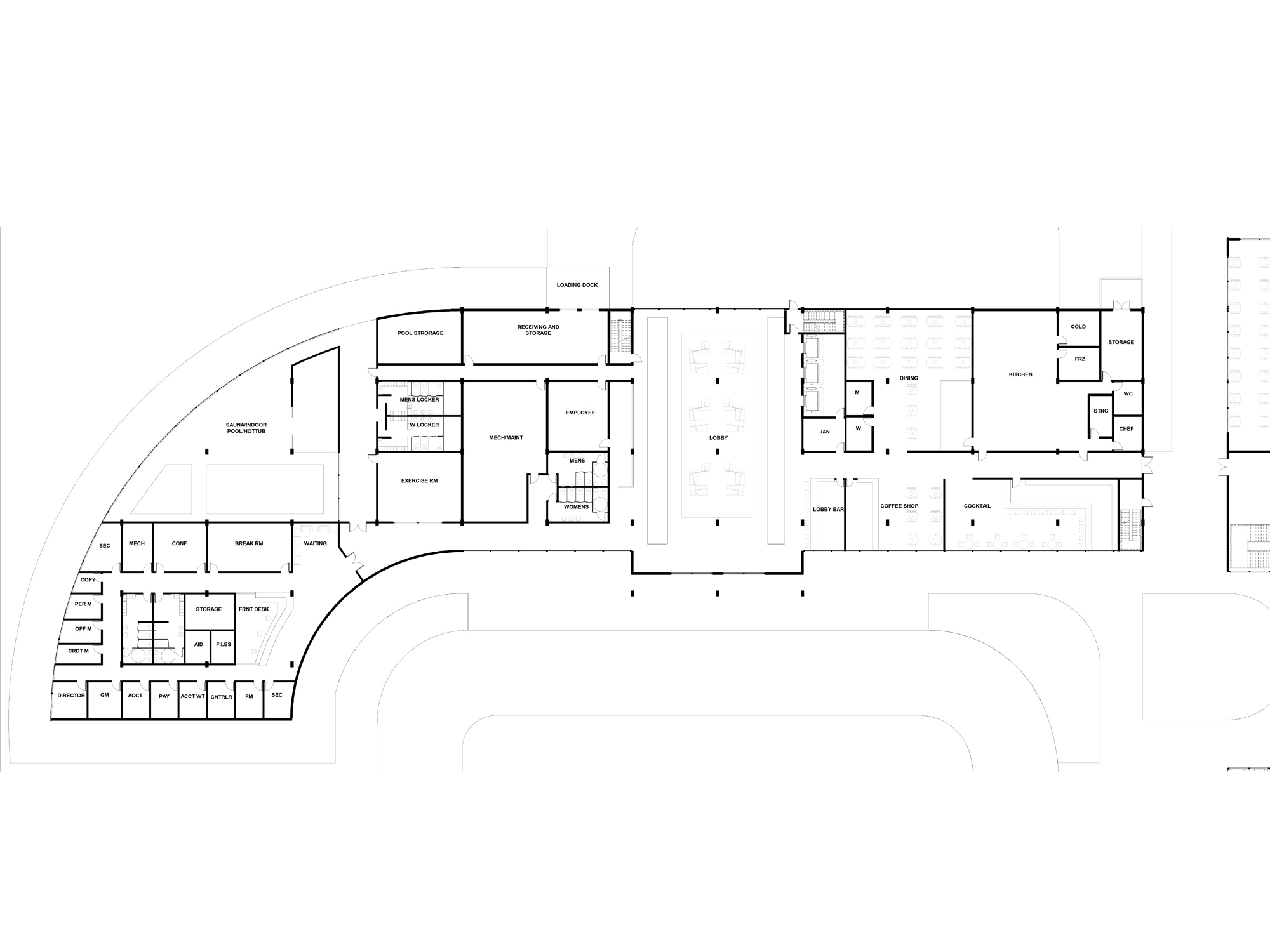
First floor plan.

First floor plan.

View Full Size

Second floor plan.

Second floor plan.

View Full Size

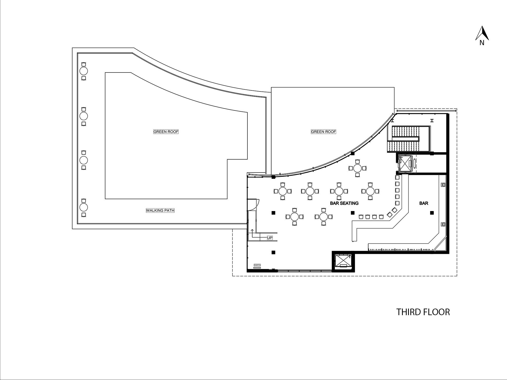
Third floor plan.

Third floor plan.

View Full Size

Diagram showing the rainwater collection system. Water is collected off of roof and stored  in water tanks on the second floor. Water is then reused.

Diagram showing the rainwater collection system. Water is collected off of roof and stored in water tanks on the second floor. Water is then reused.

View Full Size

Diagram showing natural ventilation throughout the building.

Diagram showing natural ventilation throughout the building.

View Full Size

Exploded axon highlighting the structural elements.

Exploded axon highlighting the structural elements.

View Full Size

Top view of the building.

Top view of the building.

View Full Size

Hotel and Music Venue

Artistic rendering of the front façade of the hotel.

Artistic rendering of the front façade of the hotel.

View Full Size

Artistic rendering of the entrance to the hotel.

Artistic rendering of the entrance to the hotel.

View Full Size

Interior rendering showing the lobby space.

Interior rendering showing the lobby space.

View Full Size

Interior rendering of the first floor cocktail lounge.

Interior rendering of the first floor cocktail lounge.

View Full Size

Exterior rendering of the rain garden balcony.

Exterior rendering of the rain garden balcony.

View Full Size

Exterior view of the music studio building from the hotel entrance.

Exterior view of the music studio building from the hotel entrance.

View Full Size

Floor plan showing the basic hotel room layouts.

Floor plan showing the basic hotel room layouts.

View Full Size

First floor of the main hotel building, showing on the right where the two buildings connect.

First floor of the main hotel building, showing on the right where the two buildings connect.

View Full Size

First floor plan of the music studio building, emphasizing that the hotel if accessed from the left.

First floor plan of the music studio building, emphasizing that the hotel if accessed from the left.

View Full Size

Architecture & Sustainable Design Lab Tour

Think you have what it takes to design the future? Meet Professor Dorothy Gerring who will give you a tour of the hands-on studio spaces on the campus of Pennsylvania College of Technology.

Learn more