"Sustainable architecture is mediating between idealism and pragmatism, balancing between ideals of what we would like our buildings to be and how we can create them. The ability to design buildings that are aesthetically pleasing, reflect community, and are used with environmental responsibility is the ability to create sustainable architecture."

Penns Valley, PA Collin Egelhoff
Collin's Website

Restaurant in Puerto Madero, Buenos Aires, Argentina

Rendering of the restaurant pavilion

Rendering of the restaurant pavilion

View Full Size

First Floor Plan

First Floor Plan

View Full Size

Second Floor Plan

Second Floor Plan

View Full Size

Section view detailing the use of cross ventilation and the Heat-Stack Effect

Section view detailing the use of cross ventilation and the Heat-Stack Effect

View Full Size

Site plan demonstrating the tunneling effects of the adjacent buildings on the wind

Site plan demonstrating the tunneling effects of the adjacent buildings on the wind

View Full Size

First floor plan showing natural ventilation

First floor plan showing natural ventilation

View Full Size

Rendering of the front building entrance

Rendering of the front building entrance

View Full Size

Rendering from the second floor deck showing a view of the bridge and local canal

Rendering from the second floor deck showing a view of the bridge and local canal

View Full Size

Resort and Music Venue

Exterior rendering of the entrance

Exterior rendering of the entrance

View Full Size

Exterior rendering of the entire building

Exterior rendering of the entire building

View Full Size

Interior rendering of the lobby/entry space

Interior rendering of the lobby/entry space

View Full Size

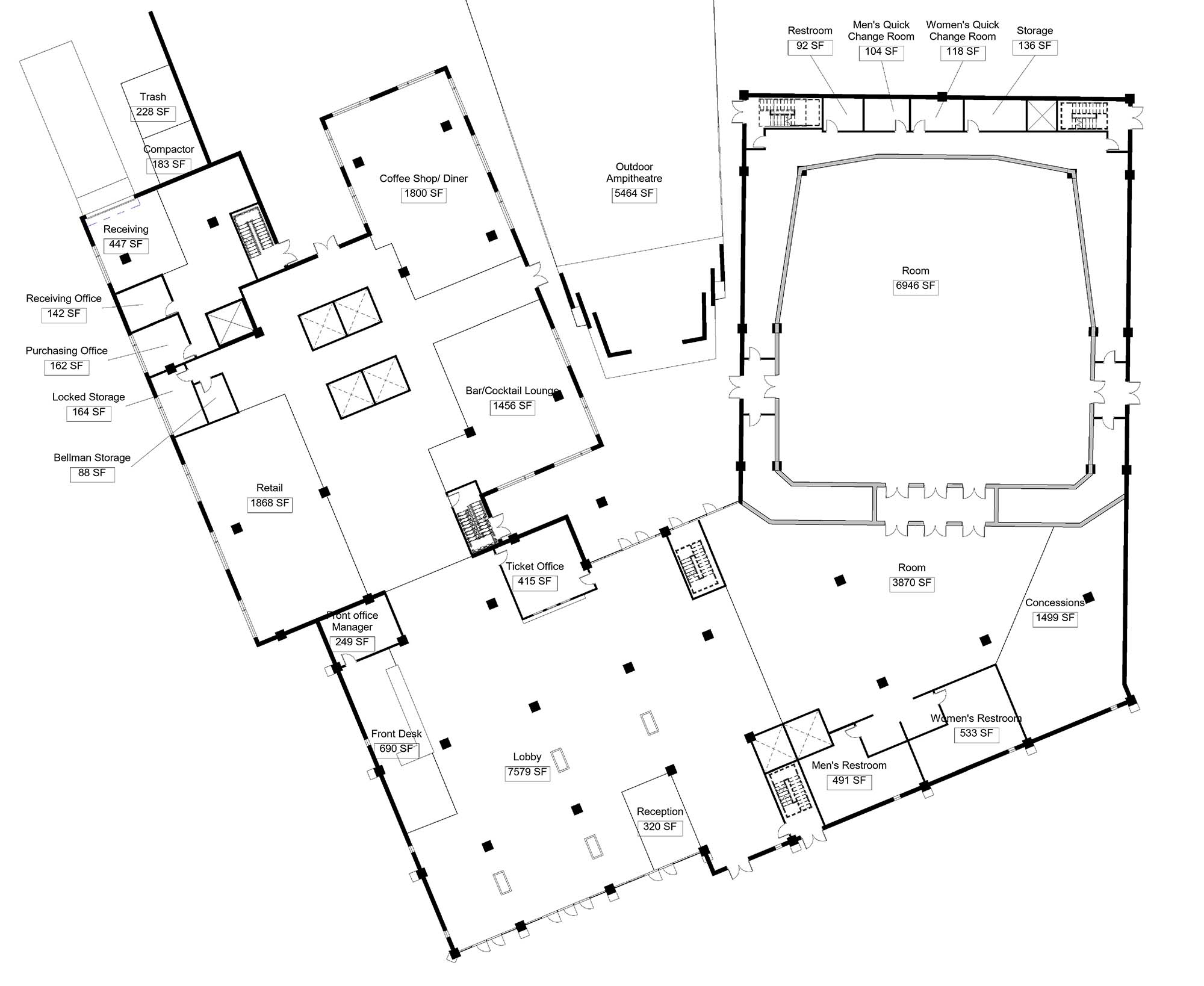
First floor plan

First floor plan

View Full Size

Typical hotel room layout with economy rooms in the West Tower and high-end suites in the East tower

Typical hotel room layout with economy rooms in the West Tower and high-end suites in the East tower

View Full Size

Site plan

Site plan

View Full Size

Sunset rendering from an exterior space

Sunset rendering from an exterior space

View Full Size

Interior rendering of one of the suites

Interior rendering of one of the suites

View Full Size

Exterior rendering of the outdoor eating area

Exterior rendering of the outdoor eating area

View Full Size

Architecture & Sustainable Design Lab Tour

Think you have what it takes to design the future? Meet Professor Dorothy Gerring who will give you a tour of the hands-on studio spaces on the campus of Pennsylvania College of Technology.

Learn more