"Architecture is a puzzle: the angle of the sun’s rays, the mechanical systems, and the materials used. These work together in response to the project’s environmental location. The designer must make these pieces come together to create an efficient, long-lasting project. Buildings impact how future generations live on our planet."

Hershey, PA Chad Karper
Chad's Website

Puerto Madero Bar & Grille

This is a rendering of what one would see while walking across the bridge to the restaurant

This is a rendering of what one would see while walking across the bridge to the restaurant

View Full Size

A view of the second-floor outdoor seating

A view of the second-floor outdoor seating

View Full Size

The northern façade allows for much natural light and airflow due to its open design

The northern façade allows for much natural light and airflow due to its open design

View Full Size

Outdoor seating and a look at the indoor seating on the first floor

Outdoor seating and a look at the indoor seating on the first floor

View Full Size

Second-floor interior dining area

Second-floor interior dining area

View Full Size

First-floor fountain and walking paths

First-floor fountain and walking paths

View Full Size

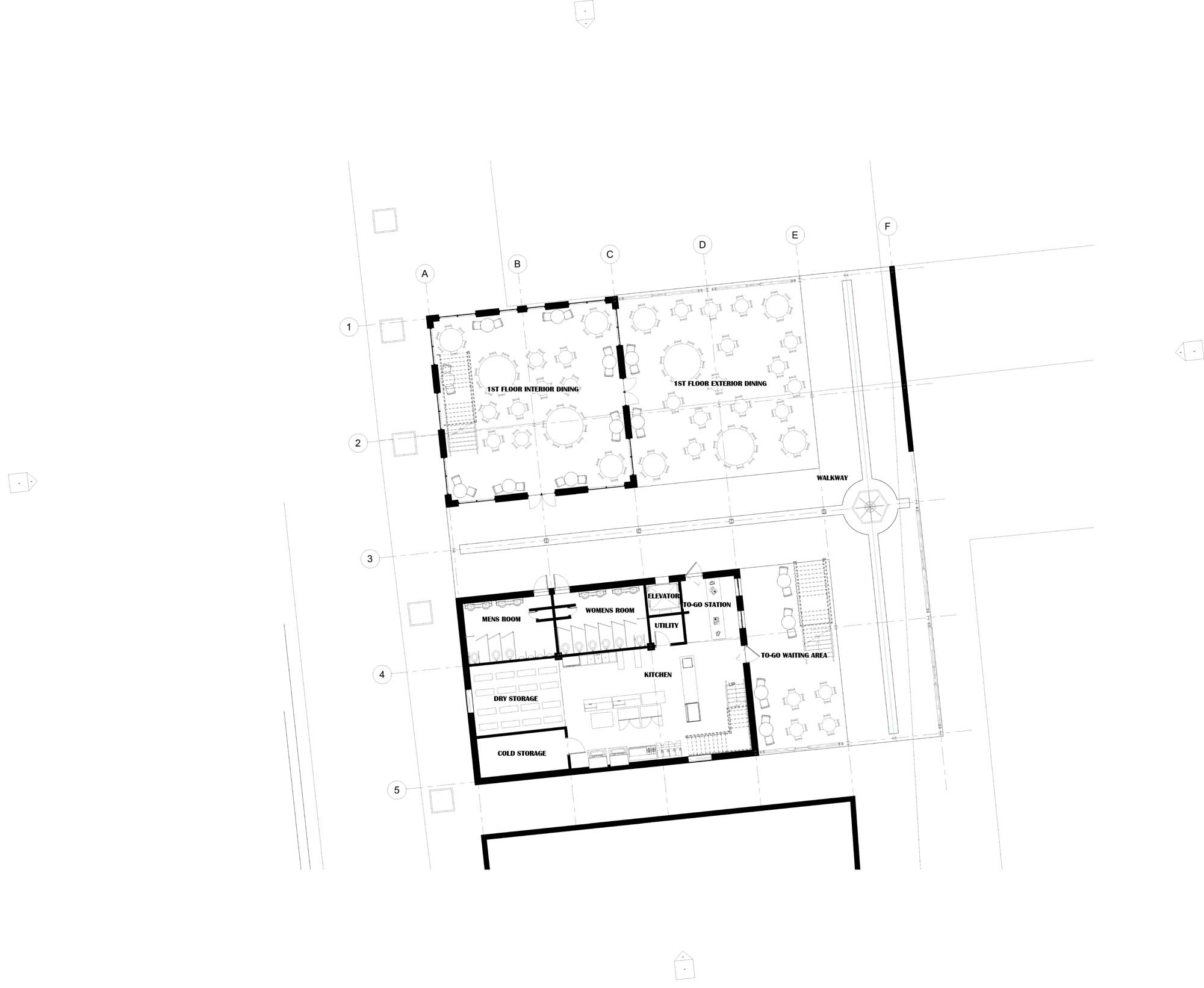
First Floor Plan

First Floor Plan

View Full Size

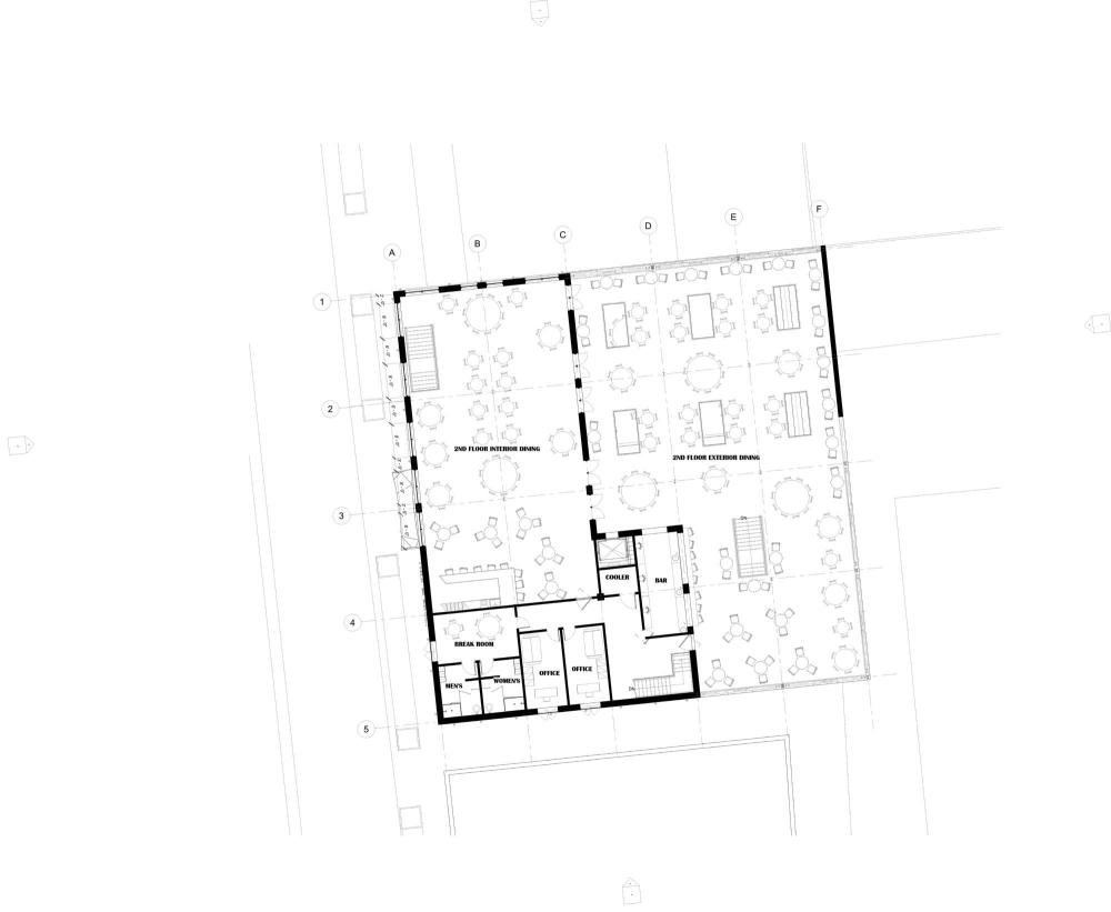
Second Floor Plan

Second Floor Plan

View Full Size

Section View of the building facing west

Section View of the building facing west

View Full Size

Architecture & Sustainable Design Lab Tour

Think you have what it takes to design the future? Meet Professor Dorothy Gerring who will give you a tour of the hands-on studio spaces on the campus of Pennsylvania College of Technology.

Learn more