"Architecture comes in many forms, old and new, it's all about what you can make of it, with your ambitions, and your goals. Architecture shows who you are as an individual when you follow your own path. Architecture is its own form of art."

Pittsburgh, PA Austin Kohl
Austin's Website

Bar & Grille, Buenos Aires, Argentina

Rendering showing the south entrance of the building.

Rendering showing the south entrance of the building.

View Full Size

Site Plan

Site Plan

View Full Size

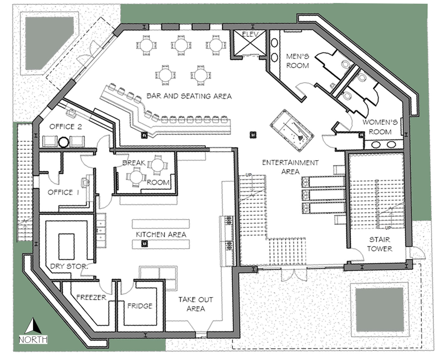
First Floor Plan

First Floor Plan

View Full Size

First Floor Rendering showing the bar and seating area.

First Floor Rendering showing the bar and seating area.

View Full Size

Second Floor Plan

Second Floor Plan

View Full Size

Second Floor Rendering showing the outdoor seating and stage area.

Second Floor Rendering showing the outdoor seating and stage area.

View Full Size

Longitudinal Cross Section

Longitudinal Cross Section

View Full Size

Transverse Section

Transverse Section

View Full Size

East Elevation

East Elevation

View Full Size

Wahah Resort and Aquarium, Dubai

Rendering showing the building from the street.

Rendering showing the building from the street.

View Full Size

Site Plan

Site Plan

View Full Size

Main Floor Plan

Main Floor Plan

View Full Size

Rendering showing the Lobby area

Rendering showing the Lobby area

View Full Size

Typical Floor Plan for Guest Rooms (Floors 2-27)

Typical Floor Plan for Guest Rooms (Floors 2-27)

View Full Size

Rendering of Luxury 2 Suite

Rendering of Luxury 2 Suite

View Full Size

Entertainment Floor Plan (Floor 12)

Entertainment Floor Plan (Floor 12)

View Full Size

View from top floor of building across the street.

View from top floor of building across the street.

View Full Size

Functions of each floors

Functions of each floors:
Green: Main Floor
Orange: Aquarium
Yellow: Laundry
Red: Entertainment Level
Purple: Guest Rooms
Pink: Pool Area

View Full Size

Architecture & Sustainable Design Lab Tour

Think you have what it takes to design the future? Meet Professor Dorothy Gerring who will give you a tour of the hands-on studio spaces on the campus of Pennsylvania College of Technology.

Learn more