"Architecture is an art that we can live in. As an architecture student and in the professional world, we look at the past, and design for the present and lasting into the future. While designing these buildings I think of the environment and the impact the building will have."

New Bern, North Carolina Stephanie Flick
Stephanie's Website

Container House

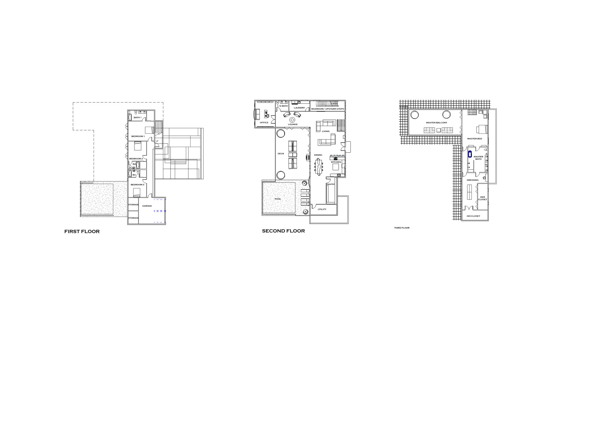
Floor Plans of the Container House

Floor Plans of the Container House

View Full Size

Rendering of Container House from street view

Rendering of Container House from street view

View Full Size

Container House from Birdseye view

Container House from Birdseye view

View Full Size

Rear side of Container House highlighting the pool

Rear side of Container House highlighting the pool

View Full Size

Living space of Container House

Living space of Container House

View Full Size

Living space overlooking the back porch through folding doors

Living space overlooking the back porch through folding doors

View Full Size

Rendering of the master bedroom

Rendering of the master bedroom

View Full Size

Render of guest bedroom

Render of guest bedroom

View Full Size

Placement of containers in the house

Placement of containers in the house

View Full Size

Restaurant in Puerto Madero, Buenos Aires, Argentina

Rendering of the exterior

Rendering of the exterior

View Full Size

Rendering emphasizing top porch

Rendering emphasizing top porch

View Full Size

Exterior rendering looking at the river

Exterior rendering looking at the river

View Full Size

Porch view

Porch view

View Full Size

Bottom porch looking out at the river

Bottom porch looking out at the river

View Full Size

Interior rendering looking out towards the river

Interior rendering looking out towards the river

View Full Size

Interior shot looking across interior restaurant seating

Interior shot looking across interior restaurant seating

View Full Size

Ground Floor

Ground Floor

View Full Size

Second Floor

Second Floor

View Full Size

Architecture & Sustainable Design Lab Tour

Think you have what it takes to design the future? Meet Professor Dorothy Gerring who will give you a tour of the hands-on studio spaces on the campus of Pennsylvania College of Technology.

Learn more