"Architecture to me is to be persistent. Persistence is how fundamental elements are kept throughout a project. There are moments in a project when you have self-doubt, lack of knowledge, anxiety, or loss of drive; but you just persevere till you get that next big idea, motivation, or break through."

Kingsley, PA Keegan B.F. Mack
Keegan's Website

Benedict House

Keegan Mack gives an overview of his project.

Benedict House

Benedict House

Benedict House

View Full Size

Over sophmore to junior year of college, I was fortunate enough to be able to demonstrate the skills I have learned in school to design my sisters home.

Over sophmore to junior year of college, I was fortunate enough to be able to demonstrate the skills I have learned in school to design my sisters home.

View Full Size

Here is rendering of the kitchen looking into the great room.

Here is rendering of the kitchen looking into the great room.

View Full Size

This is a rendering of the back of the home.

This is a rendering of the back of the home.

View Full Size

Rendering of the loft that will be used for playing and learning.

Rendering of the loft that will be used for playing and learning.

View Full Size

Here is a drone photo of the footer work for the home.

Here is a drone photo of the footer work for the home.

View Full Size

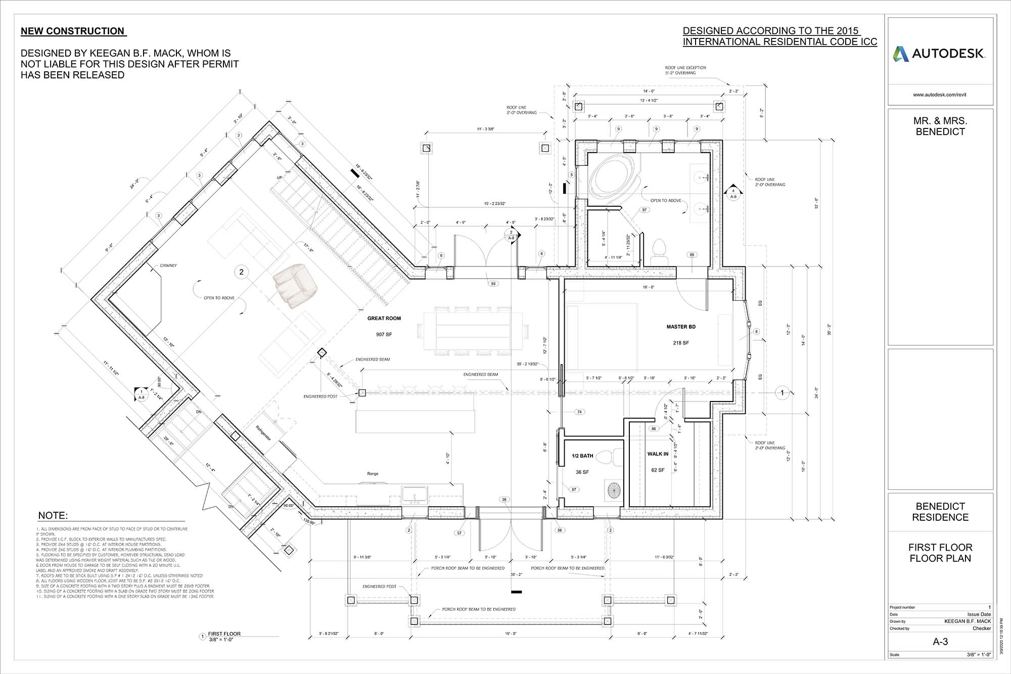
Here you can see the first floor plan.

Here you can see the first floor plan.

View Full Size

Here are one of the examples of the elevations created for this project.

Here are one of the examples of the elevations created for this project.

View Full Size

Here is a picture of the back elevation of the house.

Here is a picture of the back elevation of the house.

View Full Size

Totem Hotel and Music Resort, Anchorage, Alaska

Totem Hotel and Music Resort

Totem Hotel and Music Resort

View Full Size

For this project we were lucky enough to be able to pick our site. I chose to do Anchorage, Alaska. Thus, I was able to get this amazing Arura Borialis rendering.

For this project we were lucky enough to be able to pick our site. I chose to do Anchorage, Alaska. Thus, I was able to get this amazing Arura Borialis rendering.

View Full Size

Here is a rendering of a Suite Room in the hotel.

Here is a rendering of a Suite Room in the hotel.

View Full Size

This is a rendering of my top floor restaurant.

This is a rendering of my top floor restaurant.

View Full Size

Rendering of the luxurious top floor swimming pool.

Rendering of the luxurious top floor swimming pool.

View Full Size

Here is an early sketch of my project, and what I had in mind from early conception of the final form.

Here is an early sketch of my project, and what I had in mind from early conception of the final form.

View Full Size

Here is the structural system I used for the project. I decided to use cross laminated construction. Using wood come paired to concrete and steel can save up to 60% on carbon emissions. Also, I wanted to do a prefabricated design where the individual rooms would be shipped to the site and stacked like above.

Here is the structural system I used for the project. I decided to use cross laminated construction. Using wood come paired to concrete and steel can save up to 60% on carbon emissions. Also, I wanted to do a prefabricated design where the individual rooms would be shipped to the site and stacked like above.

View Full Size

Here is a rendering of my auditorium event space.

Here is a rendering of my auditorium event space.

View Full Size

Architecture & Sustainable Design Lab Tour

Think you have what it takes to design the future? Meet Professor Dorothy Gerring who will give you a tour of the hands-on studio spaces on the campus of Pennsylvania College of Technology.

Learn more