Penn College News

Landscape students beautify PA's first grange

Tuesday, June 3, 2025

 title=

One of two sections of the Sustainable Horticulture course, part of Penn College's landscape/plant production technology major, pose at Eagle Grange No. 1, where the students mulched and planted, completing a landscape design. The grange, organized in 1871, was the first one established in Pennsylvania. It is located less than one mile from the college's Schneebeli Earth Science Center. Joining the students in their efforts is horticulture laboratory assistant Wyatt C. Forest (kneeling at left).

The first grange in Pennsylvania has benefitted from the skills of Pennsylvania College of Technology students enrolled in the landscape/plant production technology major.

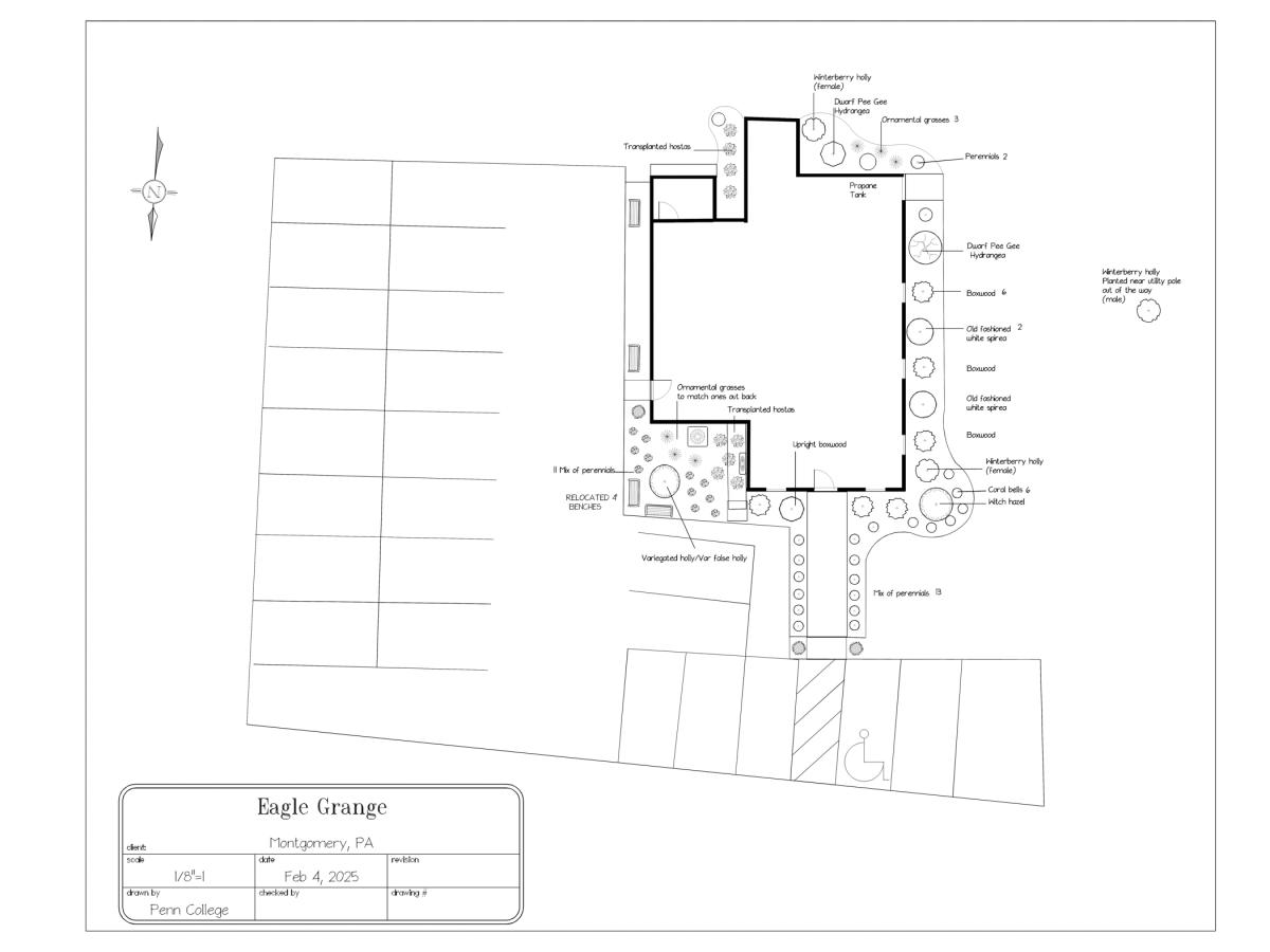
Guided by Carl J. Bower Jr., assistant professor of horticulture, students created a landscape design for Eagle Grange No. 1, during the Fall 2024 semester and installed it at the end of the Spring 2025 semester.

Eagle Grange No. 1 is situated at Route 15 and East Blind Road, less than one mile from Penn College’s Schneebeli Earth Science Center, where the landscape classes take place. (The grange was organized in 1871 by a small group of Lycoming County farmers, and its hall was built in 1887.)

So essentially, in true grange fashion, the landscape project was neighbors helping neighbors!

Bower says an Eagle Grange No. 1 representative reached out to him about the building's need, and he and his students set to work, beginning in his Computer Design Applications/Advanced Plants course. The grange’s new landscape was designed using two different software applications – Realtime Landscaping Architect and DynaScape.

“We were able to install the project this spring in my Sustainable Horticulture class. All the students that were in the CAD class were in the Sustainable class, so they got to see the project from start to finish which is always satisfying,” Bower explained. “There were no plants at all, and now it is planted almost all around the building.”

Penn College offers an Associate of Applied Science degree in landscape/plant production technology.

 title=

Students enrolled in the other lab section of the Sustainable Horticulture course, celebrate the success of their spring project with a group photo op. On right is staff member Wyatt C. Forest, laboratory assistant for horticulture.

 title=

One of the landscape designs created for presentation ...

 title=

... and another, showing a view from the front of the grange hall.